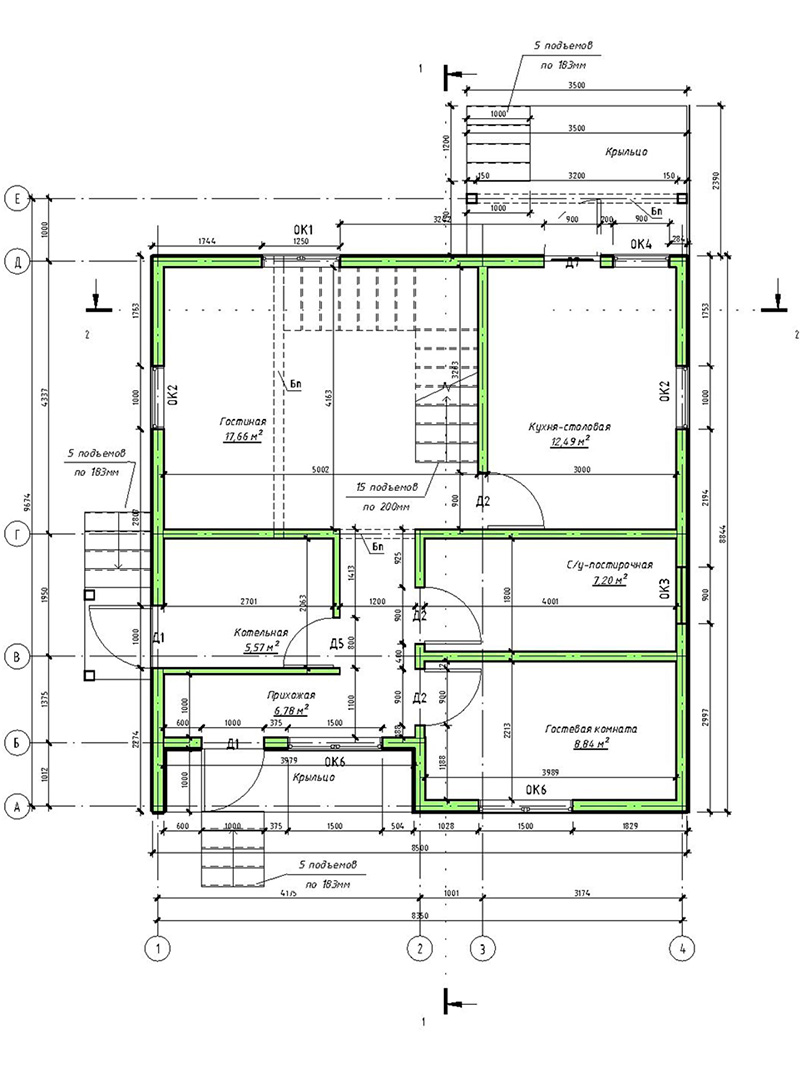
Фундамент — деревянный ростверк на винтовых сваях.
Несущие стены — SIP панель (174мм).
Покрытие — мягкая черепица.
Наружная отделка — панели под кирпич(бежевый).
+79308085555
г. Нижний Новгород
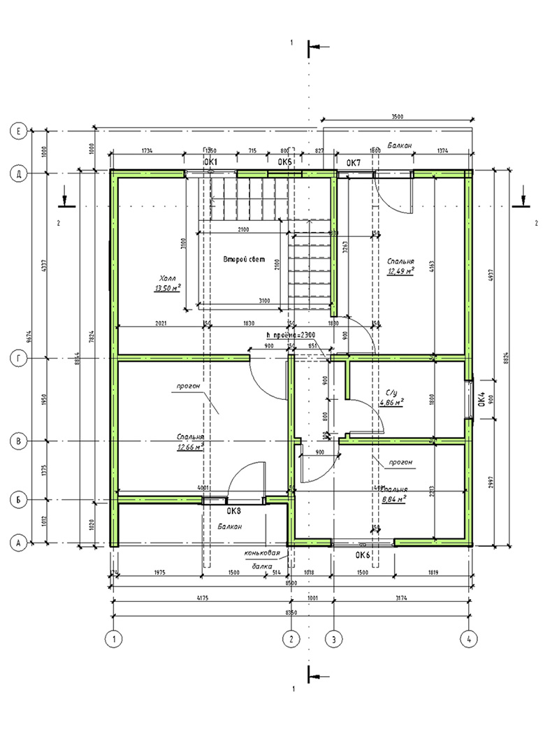
Фундамент — деревянный ростверк на винтовых сваях.
Несущие стены — SIP панель (174мм).
Покрытие — мягкая черепица.
Наружная отделка — панели под кирпич(бежевый).





