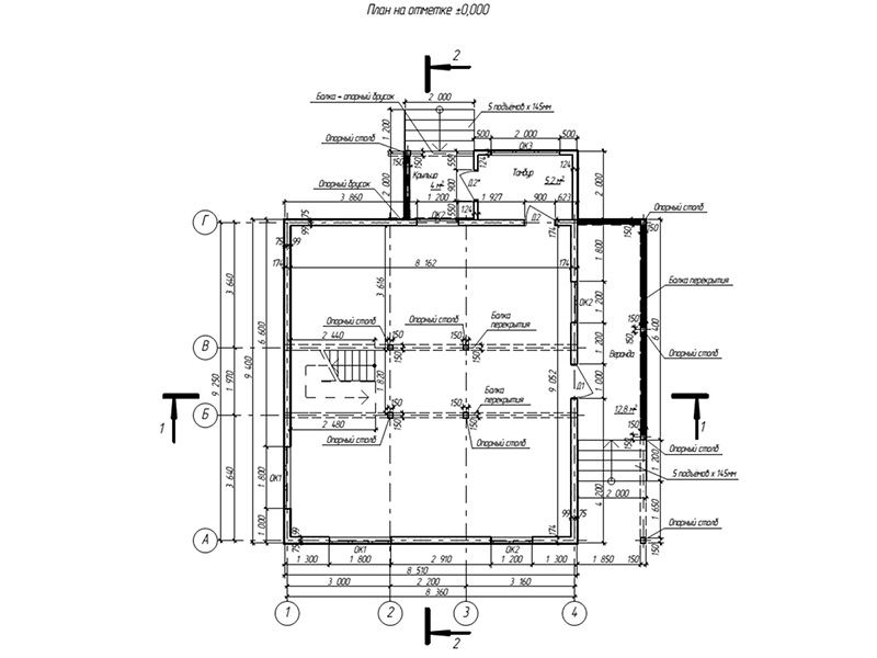
Фундамент — монолитный ж/б
Несущие стены — SIP панель (174мм)
Покрытие — битумная или металочерепица
Наружная отделка — штукатурка, облицовочная плитка, природный камень
+79308085555
г. Нижний Новгород
Фундамент — монолитный ж/б
Несущие стены — SIP панель (174мм)
Покрытие — битумная или металочерепица
Наружная отделка — штукатурка, облицовочная плитка, природный камень





