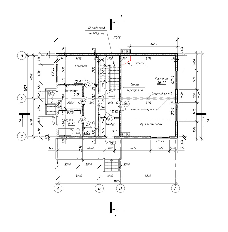
Фундамент — ж/б плита
Несущие стены — SIP панель (174мм)
Покрытие — битумная черепица
Наружная отделка — штукатурка, облицовочная плитка, природный камень
+79308085555
г. Нижний Новгород
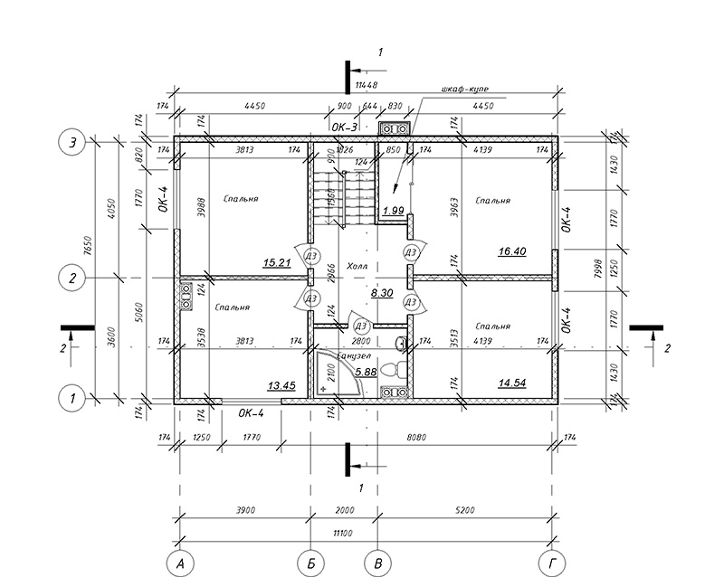
Фундамент — ж/б плита
Несущие стены — SIP панель (174мм)
Покрытие — битумная черепица
Наружная отделка — штукатурка, облицовочная плитка, природный камень





