Фундамент — деревянный ростверк на ж/б сваях
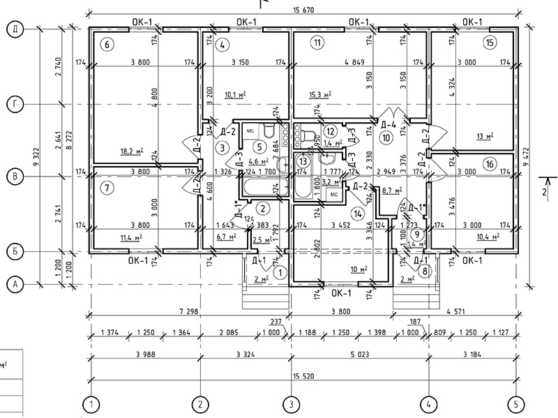
Несущие стены — SIP панель (174мм)
Покрытие — металочерепица
Наружная отделка — сайдинг
+79308085555
г. Нижний Новгород
Фундамент — деревянный ростверк на ж/б сваях
Несущие стены — SIP панель (174мм)
Покрытие — металочерепица
Наружная отделка — сайдинг




