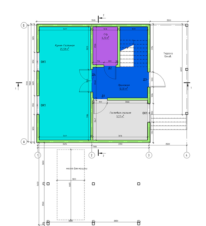
Фундамент — деревянный ростверк на винтовых сваях
Несущие стены — SIP панель (174мм)
Покрытие — металочерепица
Наружная отделка — штукатурка, доски "под фахверк"
+79308085555
г. Нижний Новгород
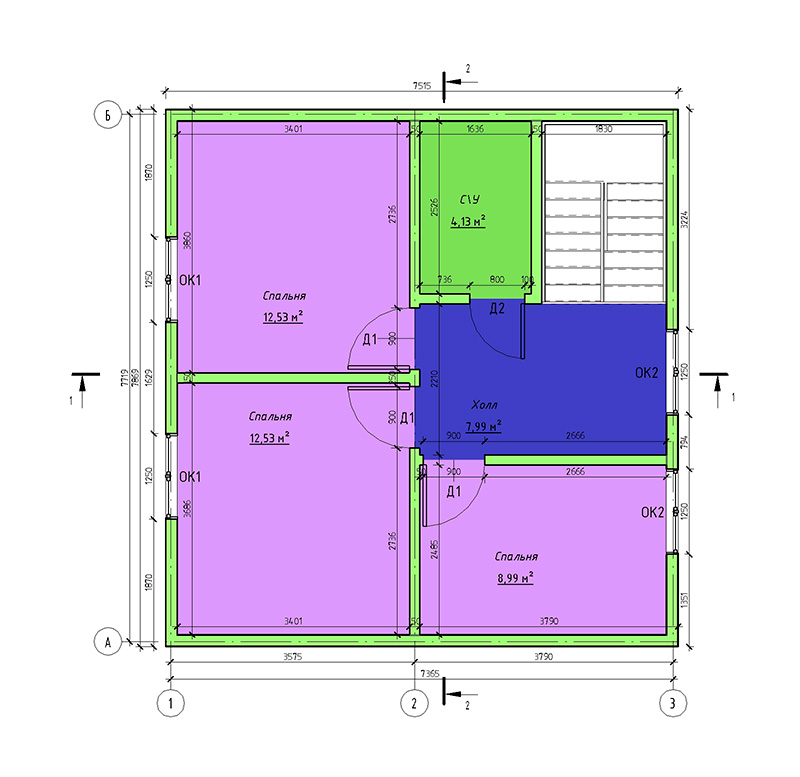
Фундамент — деревянный ростверк на винтовых сваях
Несущие стены — SIP панель (174мм)
Покрытие — металочерепица
Наружная отделка — штукатурка, доски "под фахверк"





