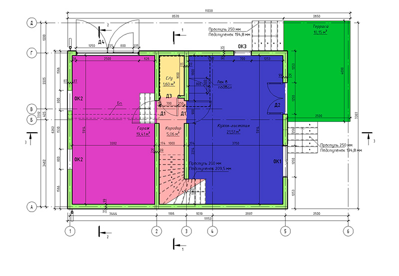
Фундамент — деревянный ростверк на винтовых сваях, монолитная плита под гараж.
Несущие стены — SIP панель (174мм)
Покрытие — мягкая черепица
Наружная отделка — штукатурка, облицовочная плитка.
+79308085555
г. Нижний Новгород
Фундамент — деревянный ростверк на винтовых сваях, монолитная плита под гараж.
Несущие стены — SIP панель (174мм)
Покрытие — мягкая черепица
Наружная отделка — штукатурка, облицовочная плитка.





