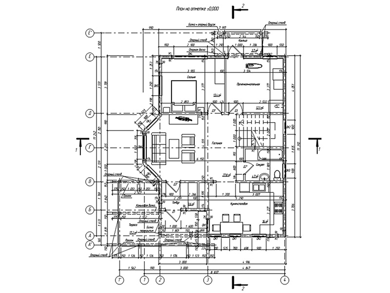
Фундамент — монолитная ж/б плита
Несущие стены — SIP панель (174мм)
Покрытие — металочерепица
Наружная отделка — штукатурка, облицовочная плитка, природный камень
+79308085555
г. Нижний Новгород
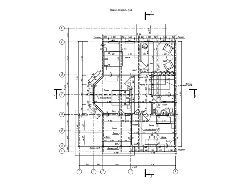
Фундамент — монолитная ж/б плита
Несущие стены — SIP панель (174мм)
Покрытие — металочерепица
Наружная отделка — штукатурка, облицовочная плитка, природный камень





