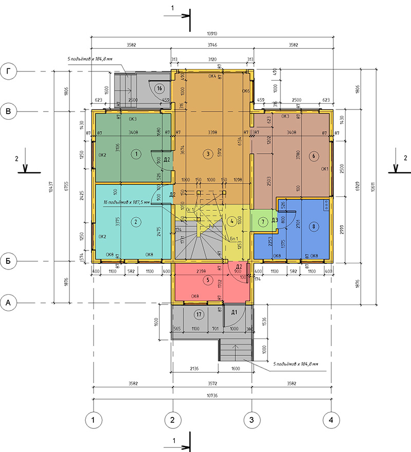
Фундамент — деревянный ростверк на винтовых сваях
Несущие стены — SIP панель (174мм)
Покрытие — битумная черепица
Наружная отделка — блокхаус
+79308085555
г. Нижний Новгород
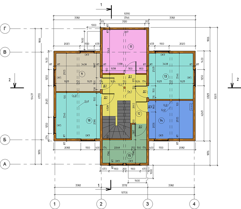
Фундамент — деревянный ростверк на винтовых сваях
Несущие стены — SIP панель (174мм)
Покрытие — битумная черепица
Наружная отделка — блокхаус





